16 Castle Rivers,Conna,Mallow,Co. Cork

  • €350,000
16 Castle Rivers,Conna,Mallow,Co. Cork, Conna, Co. Cork
Available
16 Castle Rivers,Conna,Mallow,Co. Cork, Conna, Co. Cork
  • €350,000

Overview

Property ID: 6502210
  • Residential
  • Property Type
  • 3
  • Bedrooms
  • 3
  • Bathrooms
  • 124 m²

Description

Hegarty Properties is proud to present No. 16 Castle Rivers, a beautifully presented 3-bedroom detached residence. Built in 2018 and finished to an exacting modern standard, this turnkey property offers the perfect blend of comfort and village life.
Property Highlights:
Spacious Living: Extending to c. 124.4 sq.m. (1,340 sq.ft.) of bright, well-proportioned accommodation.
Energy Efficient: Superb A3 BER rating featuring a zoned heating system for low-cost, comfortable living. Features six electric panels.
Outdoor Space: Boasts a highly desirable, spacious south-facing rear garden.
Walk-in Condition: Meticulously maintained and ready for immediate occupation.
The Lifestyle & Location:
Situated in the heart of Conna, a village steeped in history and nestled along the Bride River. You are just a short stroll from local amenities, shops, schools, and sporting facilities. Enjoy the warmth of a welcoming community while maintaining easy commuting routes to Fermoy, Midleton, and Cork City.
Properties in this sought-after development rarely come to the market, making this an exceptional opportunity to secure a long-term family home.
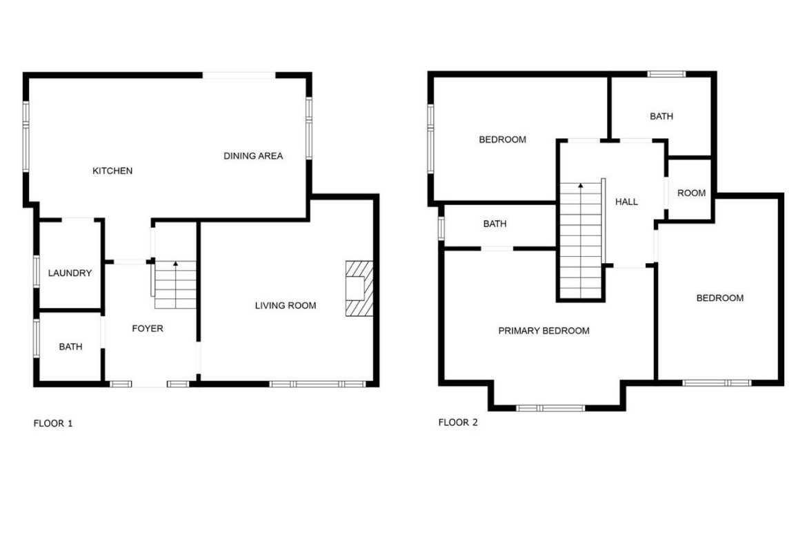
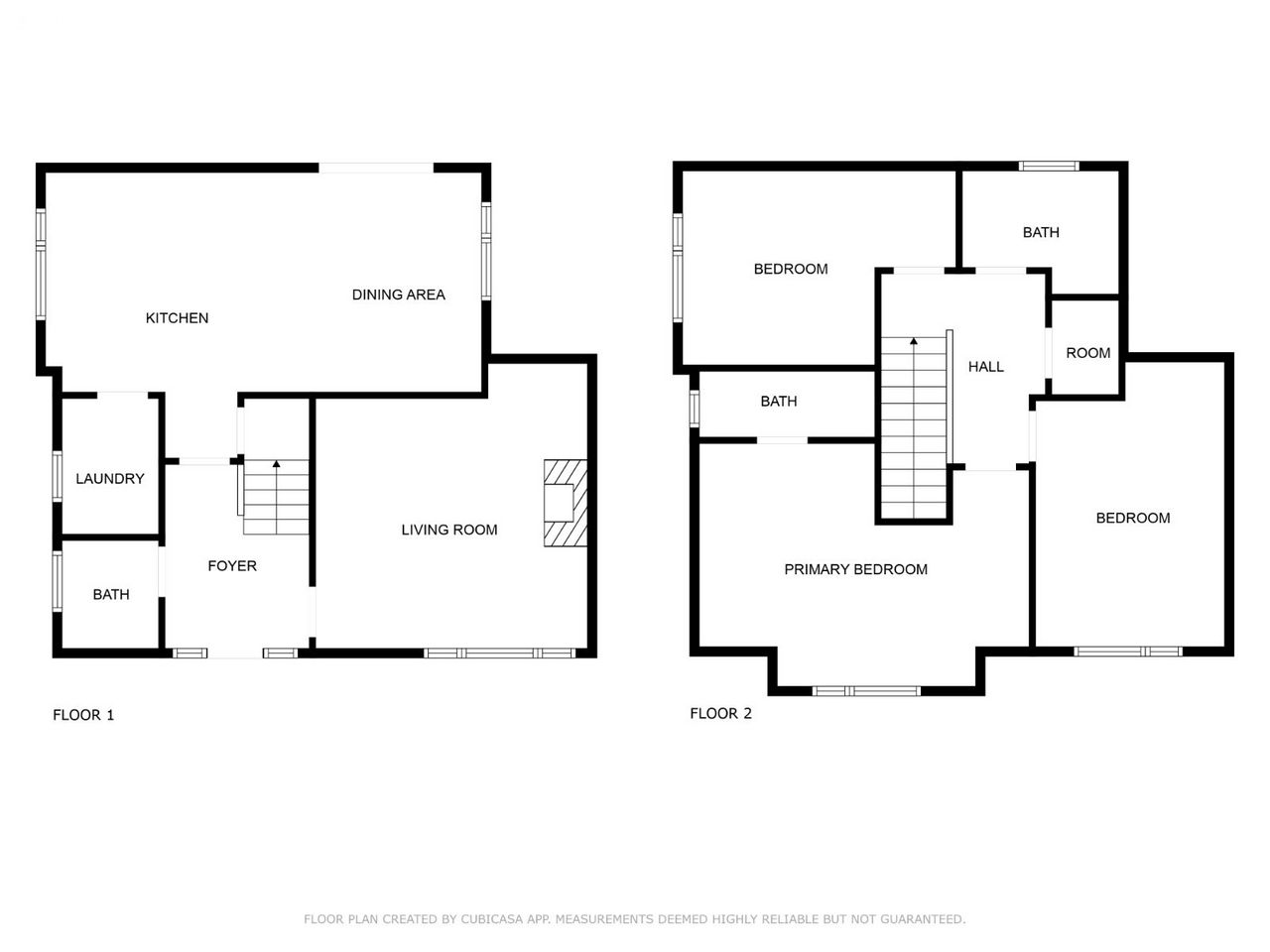
Accommodation Comprises:
Ground Floor: Entrance Hallway, Guest Toilet, Sitting Room, Kitchen/Dining Area, and Utility Room.
First Floor: 3 Bedrooms (1 Master En-Suite) and a Family Bathroom
Accommodation:
Ground Floor:
Entrance Hall: A welcoming and bright entrance with tiled flooring continuing seamlessly into the kitchen.

Guest W.C.: Finished with modern tiling, W.C., and wash hand basin.

Sitting Room: A generously proportioned, comfortable family living space featuring a large front-facing window that floods the room with natural light. Finished with dark wood laminate flooring, feature fireplace with multi-fuel stove.
Kitchen/
Dining Area: This stunning, modern space boasts fully fitted contemporary units with ample storage and workspace, alongside integrated appliances: induction hob, double oven, island unit, dishwasher. The dining area features double doors that open directly onto the spacious south-facing rear patio and garden, perfect for seamless indoor-outdoor entertaining.

Utility room: A highly practical space, fully plumbed for a washing machine and dryer, with additional fitted storage units.
First Floor:
Main Bedroom: A spacious bedroom situated to the front of the property. Features
laminate flooring.

Ensuite: A stylish, modern en-suite featuring tiled flooring & shower area, power shower, W.C. & wash hand basin.

Bedroom 2: Spacious front-aspect double with blinds and laminate flooring.

Bedroom 3: Double room with side aspect, blinds, and laminate flooring.

Family Bathroom: Fully tiled with bath, electric shower, vanity unit with sink, and W.C.

Included in sale: All curtains, carpets, blinds, light fittings & kitchen appliances i.e. cooker, integrated dishwasher & fridge/freezer. Garden shed also included.

Outside: Generous south-facing rear garden offering privacy and excellent natural light. Steeltech shed, garden dining area, and mature apple tree. Off-street parking for two cars. Mains water and septic services.

Special Features:
Detached 3-bedroom, 3-bathroom family home
BER: A3 | BER No: 111854626 | kWh/m/yr: 71.05
Built in 2018
Six electric solar panels
Zoned oil-fired central heating
Double-glazed windows & doors
Attic partly floored with lighting
South-facing private rear garden with Steeltech shed and apple tree
Driveway with off-street parking for 2 cars
Situated in a historic riverside village community
Within easy reach of Fermoy, Midleton, and Cork City
Hot Press: Fully shelved.

Location
Conna is a historic and thriving village located on the banks of the River Bride. The area is known for its castle ruins, scenic walks, and vibrant community spirit, with excellent sporting facilities and an active local GAA club. Families are well served by local primary schools and school transport to secondary schools in Fermoy and Midleton.
The property is just:
15 minutes from Fermoy
25 minutes from Midleton
40 minutes from Cork City
This strong connectivity, paired with a warm community atmosphere, makes Conna a highly desirable place to live.

Viewing:
Please ring to make an appointment. Our office is open Monday to Friday. Visit our
website www.hegartyproperties.ie to view all our properties.

Daft Link

  • City Co. Cork
  • State/county Co. Cork
  • Area Conna
  • Country Ireland

Details

Updated on February 20, 2026 at 5:32 pm
  • Property ID: 6502210
  • Price: €350,000
  • Property Size: 124 m²
  • Bedrooms: 3
  • Bathrooms: 3
  • Property Type: Residential
  • Property Status: Available

Contact Information

View Listings
Adrianna Hegarty

Enquire About This Property

Similar Listings

Compare listings

Compare
Adrianna Hegarty
  • Adrianna Hegarty