Ballard Hill,Marino,Cobh,Co. Cork

  • €265,000
Ballard Hill,Marino,Cobh,Co. Cork, Cobh, Co. Cork
  • Residential
  • Property Type
  • 3
  • Bedrooms
  • 1
  • Bathroom
  • 81 m²
Available
Ballard Hill,Marino,Cobh,Co. Cork, Cobh, Co. Cork
  • €265,000

Overview

Property ID: 6476292
  • Residential
  • Property Type
  • 3
  • Bedrooms
  • 1
  • Bathroom
  • 81 m²

Description

Hegarty Properties are delighted to present this character-filled 3-bedroom semi-detached cottage, set on a generous c. 0.6-acre site in Ballard, Cobh, a peaceful countryside setting on The Great Island Peninsula, while remaining within easy reach of Cobh town, Midleton, and Cork City.
The property retains many original rustic features including native pinewood finishes, traditional latches, red-brick detailing and exposed beams, while benefiting from key upgrades such as a modern fitted kitchen, updated bathroom and white PVC double-glazed windows.
Internally, the layout offers a warm, welcoming feel, with the kitchen/dining area enjoying an abundance of natural light, enhanced by a large overhead skylight, creating a bright central hub of the home. A multi-fuel stove with back boiler adds comfort and practicality, heating radiators throughout.
The outdoor space is equally appealing, with a private rear lawn and yard, corrugated sheds, and a large site offering ample scope for buyers seeking space for gardening, storage, hobby use, or future development potential (subject to planning permission).
Ballard enjoys an enviable position close to the historic port town of Cobh, famous for its tiered waterfront streetscape and St. Colmans Cathedral, as well as amenities including schools, shops, cafs, sporting clubs and coastal walks.

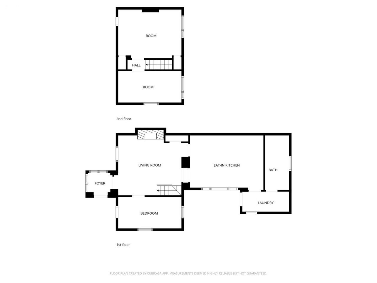
Accommodation:
Ground Floor:
Entrance Porch: PVC double glazed windows.

Sitting Room: Multi-fuel fitted stove, fitted with back boiler which heats radiators and feature redbrick surround. Laminate flooring.
Bedroom 1: Bright rear-aspect room with laminate flooring.

Kitchen/Dining: Fully fitted oak kitchen with tiled floor and splashback. Appliances include: freestanding fridge-freezer, dishwasher, electric cooker & hob.

Utility Area: Plumbed for washing machine and dryer, door to rear.

Bathroom: W.C., wash hand basin, bath & separate shower.

First Floor:
Bedroom 2: Built-in storage with laminate flooring.

Bedroom 3: Exposed beams and built-in storage. Laminate flooring.

Outside: Private lawned rear garden with connected yard. Corrugated sheds to rear. Generous site with excellent potential for a variety of uses.

Services:
Private septic tank
Well water (with potential to connect to mains, subject to confirmation)

Features:
Built c. 1890 | Extension added 2013
Charming cottage style with traditional features throughout
C. 0.6 acre site with yard, sheds & lawn
Multi-fuel stove with back boiler (heats radiators)
White PVC double-glazed windows
Bright kitchen/dining space with large skylight
Former plant hire use with excellent space/storage potential
Outside tap
BER: F | BER No. 118293729

VIEWING:
Please telephone to make an appointment. Our office is open from 9.00am 5.30pm Monday to Friday.
To view any of our properties please visit www.hegartyproperties.ie

Daft Link

  • City Co. Cork
  • State/county Co. Cork
  • Area Cobh
  • Country Ireland

Details

Updated on January 20, 2026 at 8:50 am
  • Property ID: 6476292
  • Price: €265,000
  • Property Size: 81 m²
  • Bedrooms: 3
  • Bathroom: 1
  • Property Type: Residential
  • Property Status: Available

Contact Information

View Listings
Adrianna Hegarty

Enquire About This Property

Similar Listings

Compare listings

Compare
Adrianna Hegarty
  • Adrianna Hegarty