Ballintubber,Carrigtwohill,Co. Cork

  • €460,000
Ballintubber,Carrigtwohill,Co. Cork

Overview

Property ID: 6349543
  • Residential
  • Property Type
  • 4
  • Bedrooms
  • 2
  • Bathrooms
  • 160 m²

Description

Hegarty Properties are delighted to present this detached 4-bedroom bungalow standing on a private c. 0.5 acre site in Ballintubber, Carrigtwohill, Co. Cork.
Built in 1978 (timber frame) and subsequently extended in 1985 and 1994, the property offers a generous single-storey layout with excellent potential to modernise and upgrade. In 2015 a solid roof was added to the sunroom, creating a bright, usable reception space that links seamlessly to the garden.
Set back from the road behind a driveway with ample parking and a detached garage/workshop, the property will appeal to buyers seeking privacy, space and a home they can tailor to their own style, while still remaining convenient to surrounding villages, services and transport links.

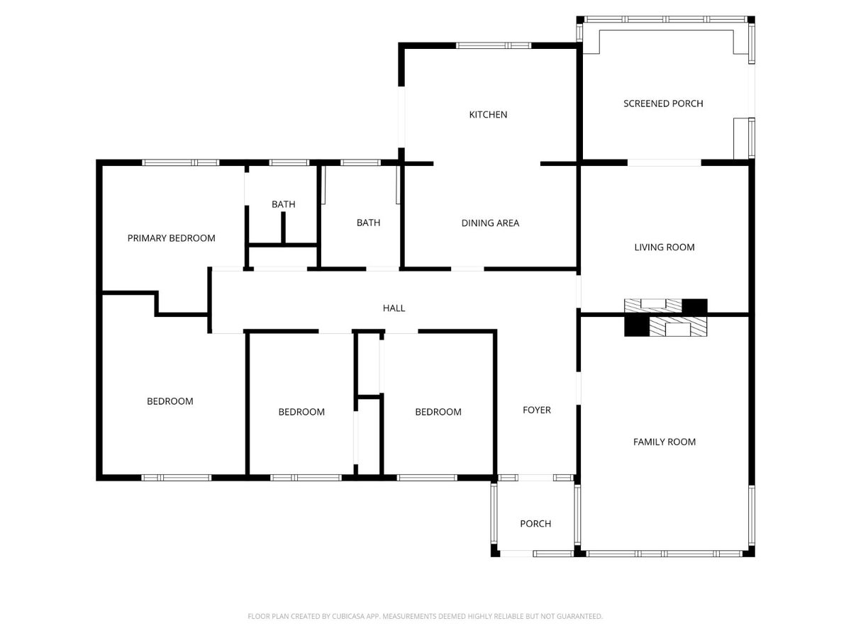
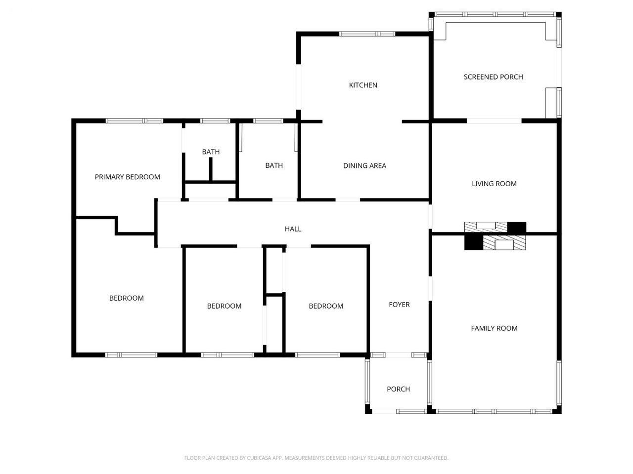
Accommodation: Entrance Porch, Hallway, Family Room, Living Room, Sunroom, Kitchen / Dining Room, 4 Bedrooms (Main En-Suite) And Family Bathroom. (Circa 160 Sq.Mt.)

Accommodation:
Entrance Hall: Spacious central hallway with carpet flooring and access to bedroom and living wings.

Family Room: Front aspect reception room with open fireplace and carpet flooring.

Living Room: Central space with open fire and double doors to the sunroom, creating an excellent flow for entertaining.

Sunroom: Bright reception room with timber floor, extensive glazing and views over the garden. Direct access to patio / garden.

Kitchen / Dining Room
(extended 1985): Fitted kitchen with wall and floor units and generous worktop space; defined kitchen and dining zones with a mix of tiled and timber-effect flooring. Door to rear garden.

Bedroom 1: Front aspect double bedroom with carpet flooring and built-in wardrobe.

Bedroom 2: Front aspect double bedroom with carpet flooring and built-in wardrobe.

Master Bedroom
(Bedroom 3): Rear aspect double bedroom with built-in wardrobes.
En-suite: W.C., W.H.B. and electric shower.

Bedroom 4: Front aspect room with carpet flooring: ideal as bedroom, home office or study.
Family
Bathroom: Fully tiled; bath, electric shower, W.C., W.H.B. and bidet.

Hot Press: Fully shelved; houses condensing boiler.

Services:
Oil fired central heating (OFCH)
Zoned heating
Triple-glazed windows throughout (installed c. 15 years ago)
Timber frame construction (1978)
Extensions in 1985 (kitchen) and 1994
Stira folding stairs to attic
Mains water
(Drainage and any additional service details available on request.

Outside:
Site extending to c. 0.5 acres
Mature gardens surrounding the house, mainly laid to lawn
Driveway with ample off-street parking
Attached block-built garage/workshop with roller door and power
Plenty of scope for landscaping, vegetable garden, play area or further extension (subject to planning permission)

Features:
Detached 4-bedroom bungalow on a large private site
Solid-roof sunroom added in 2015
Triple-glazed windows & C2 BER
Zoned OFCH with condensing boiler
Stira access to attic storage
Attached powered garage/workshop
Quiet rural setting while still convenient to nearby villages and main routes
BER: C2 BER Number: 118402940
Eircode: T45XW66

VIEWING: Please ring to make an appointment. Our office is open Monday to Friday.
Visit our website www.hegartyproperties.ie to view all our properties.

Daft Link

  • City Co. Cork
  • State/county Co. Cork
  • Area Carrigtwohill
  • Country Ireland

Details

Updated on December 8, 2025 at 10:12 am
  • Property ID: 6349543
  • Price: €460,000
  • Property Size: 160 m²
  • Bedrooms: 4
  • Bathrooms: 2
  • Property Type: Residential
  • Property Status: Available

Contact Information

View Listings
Adrianna Hegarty

Enquire About This Property

Similar Listings

Compare listings

Compare
Adrianna Hegarty
  • Adrianna Hegarty