Meadowbrook Farm, Rathcuppogue, Midleton, Co. Cork

  • €610,000
Meadowbrook Farm, Rathcuppogue, Midleton, Co. Cork
Available
Meadowbrook Farm, Rathcuppogue, Midleton, Co. Cork
  • €610,000

Overview

Property ID: 22000764
  • Commercial
  • Property Type

Description

Hegarty Properties are pleased to offer Meadowbrook Farm to the market. This south facing farmhouse, originally built in circa 1930 and was extended circa 1960 with the addition of a kitchen, bathroom and bedroom. The current owners bought the property in 1998 when it underwent a complete upgrade and renovation, then in 2008 a further extension was added comprising of a large sun-room, utility room and shower room. The farm holding consists of c. 13.5 acres in total (5 acres in forestry and 7.5 acres of excellent pasture land) with the house and yard area with many sheds and outhouses occupying 1 acre.
This is undoubtedly a rare opportunity to acquire a fine family home with land, ideal for hobby farming and located close to the coast with distant sea views. The location is superb; offering all the attributes of country living with numerous beaches within close proximity such as Ballybrannigan, Ballycroneen & Inchwhile at the same time being within a 10 minuteTMdrive of Midleton Town. There are excellent primary schools within the vicinity such as Saleen, Aghada & Ballycroneen and secondary schools are well-catered for in nearby Midleton with bus pick-up at the gate!

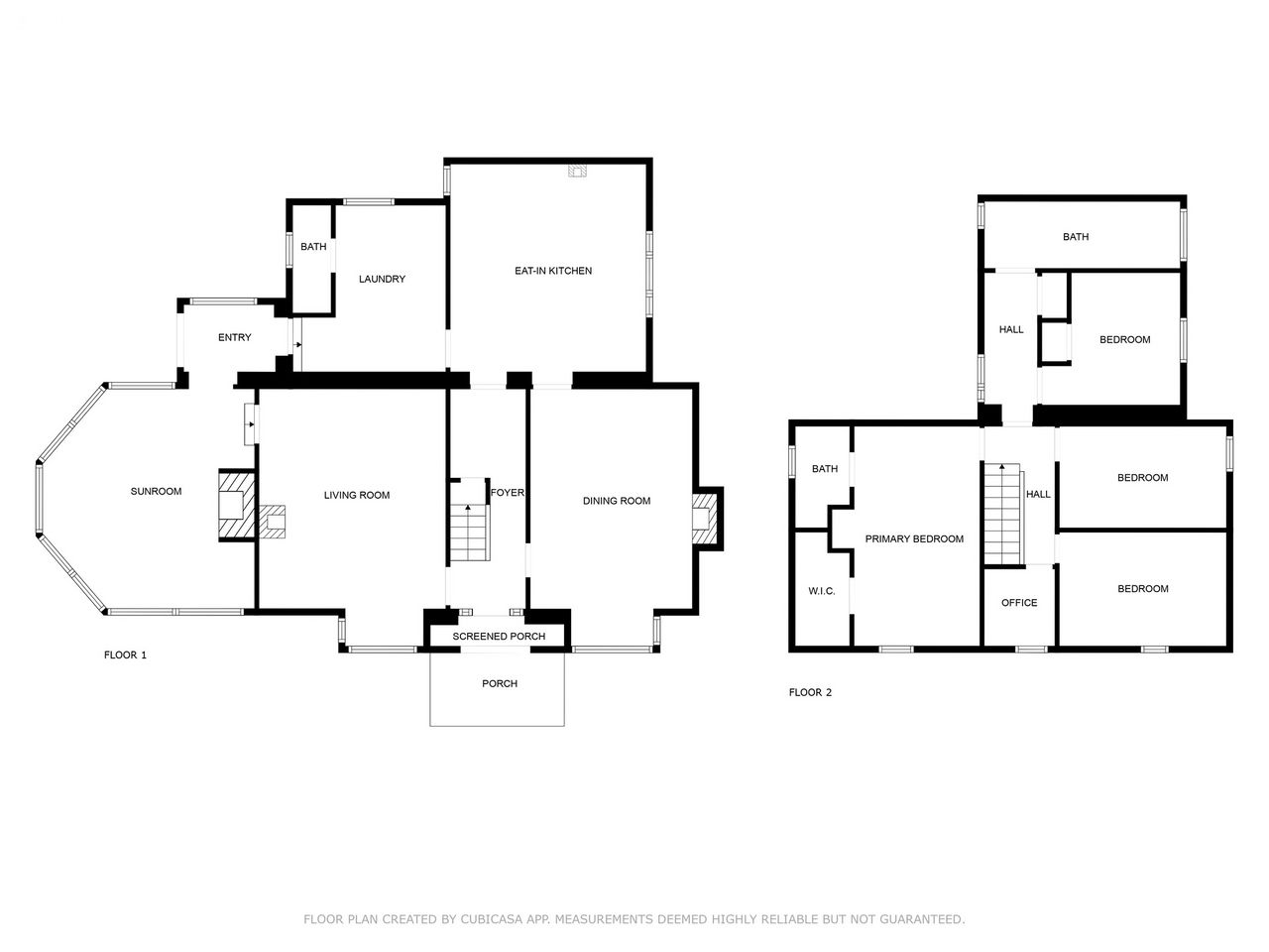
Accommodation includes: Entrance Porch, Sitting Room, Dining Room, Kitchen/ Dining Area, Sunroom, Utility Room/Laundry Room and Shower Room on the ground floor. Upstairs there are 4 Bedrooms (main bedroom with ensuite and walk-in wardrobe), Office and Main Bathroom. Circa 2,035 sq.ft.

There is also a detached garage and boiler house located on the east side of the house and many sheds; namely hay shed, machinery shed, storage sheds and workshop located to the rear of the property.

Accommodation:
Ground Floor:

Entrance Porch:

Hallway: Tiled flooring.

Sitting Room: Front aspect room with bay window, ceiling coving, centre rose and chandelier, varnished pine flooring, open fireplace with cast iron surround and wood burning stove fitted. Glass door with steps down to sunroom.

Sunroom: Bright room with tiled flooring, feature brick wall with electric stove fitted (working chimney so can accommodate a wood burning stove), pine dome shaped high ceiling and double-glazed windows with openings. Door to rear porch and rear garden.

Dining Room: Front aspect room with bay window, electric stove fitted with cast iron surround, carpeted flooring, ceiling coving and centre rose. Door to:

Kitchen/Dining: Fully fitted white kitchen with granite work-top, with Belfast sink, free standing gas cooker with gas hob, fridge/freezer and dishwasher. Wood burning stove fitted. Recessed lighting and spot lighting. Feature grey and white floor tiling and white tiled splashback. Door to:

Utility Room/Laundry: Plumbed for washing machine & dryer included in sale. Ample additional storage. Tiled flooring. Door to:

Shower Room: W.C., wash hand basin, electric shower and heated towel rail. Fully tiled.

Rear Porch: Tiled flooring with French doors to rear garden. Access to utility room, sunroom and rear garden.

First Floor: Bright landing with carpet flooring.

Master Bedroom: Front aspect double bedroom, with varnished pine flooring and built in storage press and vanity shelving.
Ensuite: W.C., wash hand basin and electric shower. Tiled shower area and floor.
Walk in wardrobe: Varnished pine flooring and built in shelving.

Bedroom 2: Front aspect double bedroom with carpet flooring.

Bedroom 3: Side aspect room with carpet flooring.

Bedroom 4: Side aspect with built in wardrobe. Carpet flooring.

Office: Front aspect. Carpet flooring.

Family Bathroom: W.C., wash hand basin, bidet and feature corner bath. Fully tiled and varnished pine flooring. Access to attic.

Outside: The property is accessed via a private road with right of way in place. Gated entrance with gravelled driveway to forecourt with ample off-street parking, mature hedging and rose beds and flowering shrubs in place. There is an original dry stone boundary wall to the rear. There is a large detached block-built, fully powered, insulated garage with Wifi located to the east side of the property along with boiler house.

On the west side there is a rockery, lawn, patio/seating area, outside tap and large block built shed. On the east side, there is a lawned area, flowering shrubs, sheltered patio area and barna shed. Access to yard and land is via a passage located on the west side of the property with numerous sheds, out-houses and workshop. There are a further 12.5 acres of land; currently 5 acres are in forestry (which get a government grant of ‘750 p.a.) and 7.5 acres of excellent pasture land (which benefits from a government grant of ‘1,300 p.a.).

Services:
Private well.
Private septic tank.
Oil fired central heating.

Sale to include: All carpets, curtains, light fittings kitchen appliances i.e. cooker, fridge/freezer, dishwasher, washing machine and dryer. Wood burning stoves also included in the sale.

FEATURES:

C3 Building Energy Rating. BER Number: 117510008
Well presented throughout.
Circa 2,035 sq. ft. of internal living accommodation & set on circa 13.5 acres.
Solid original pine doors and skirting boards on first floor.
Sea views from first floor.
10 minuteTMdrive (9 kms) to Midleton.
Numerous National Schools in the vicinity such as Saleen, Aghada & Ballycroneen.
Secondary Schools are well-catered for with the highly regarded Midleton College a short drive away.
Eircode: P25 H362

VIEWING: Strictly by appointment with the Sole Selling Agent. Please ring to make an appointment. Our office is open Monday to Friday.

Visit our website www.hegartyproperties.ie to view all our properties or www.myhome.ie or www.daft.ie

Daft Link

  • City Co. Cork
  • State/county Co. Cork
  • Area Midleton
  • Country Ireland

Details

Updated on August 13, 2025 at 4:29 pm
  • Property ID: 22000764
  • Price: €610,000
  • Property Type: Commercial
  • Property Status: Available

Contact Information

View Listings
Adrianna Hegarty

Enquire About This Property

Similar Listings

Compare listings

Compare
Adrianna Hegarty
  • Adrianna Hegarty