Lisgoold East,Leamlara,Cork, Midleton, Co. Cork

  • €375,000
Lisgoold East,Leamlara,Cork, Midleton, Co. Cork
Sale agreed
Lisgoold East,Leamlara,Cork, Midleton, Co. Cork
  • €375,000

Overview

Property ID: 6541822
  • Residential
  • Property Type
  • 3
  • Bedrooms
  • 2
  • Bathrooms
  • 127 m²

Description

Hegarty Properties are delighted to present this charming and beautiful country residence located at Lisgoold East, Midleton, Co. Cork, T56FH02.
Set on approximately 0.6 acres, this attractive early 1900s home enjoys an elevated position with stunning, uninterrupted views over the surrounding countryside. This property offers a rare opportunity to acquire a home of character in a peaceful and scenic rural setting, while remaining within easy reach of Lisgoold, Midleton, and Cork City.
Approached via a gravel driveway, the residence sits within its own private grounds, surrounded by mature gardens and open green space.
Internally, the home retains much of its original charm, with features such as a traditional staircase, timber flooring, and bright, well-proportioned rooms throughout. Natural light fills the interior, enhancing the warm and welcoming atmosphere evident throughout.
Internally, the main residence retains much of its original character, with features such as a traditional staircase, timber flooring, and bright, well-proportioned rooms throughout.
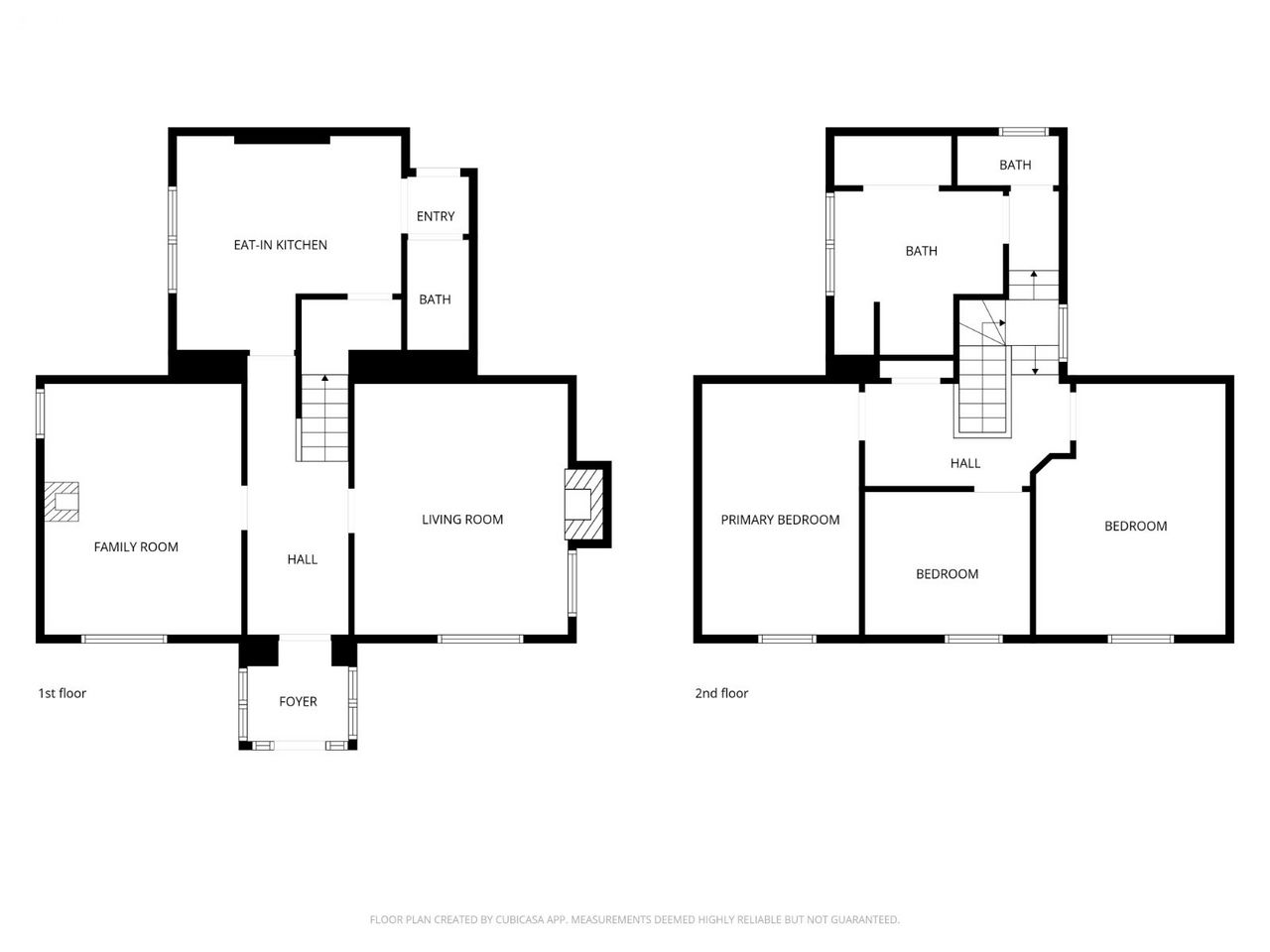
Accommodation Includes: Entrance porch, Sitting Room, Kitchen/Dining Room, Living Room, 3 Bedrooms, Family Bathroom. Approx. 1,366 sq. ft.
Guide Price: 375,000

These particulars are for guidance only and do not form part of any contract. All statements contained in these particulars as to the property are made without responsibility on the part of the agents or the vendor and none of these statements contained in these particulars as to the property are to be relied on as statements or representation of fact. Any intending purchasers shall satisfy themselves by inspection or otherwise as to the correctness of each of them. No omission, accidental error or misdescription shall be ground for a claim for compensation, nor for the recission of the contract by either the vendor or purchaser. They are issued on the understanding that all negotiations will be conducted through this firm.

Accommodation
Ground Floor
Entrance: Entrance porch opens into a warm and welcoming entrance
hall, with quarry tiles.

Living Room: Dual aspect with multi-fuel stove and carpet flooring.

Sitting Room: Dual aspect with open fire with ornate marble tiling. Carpet flooring

Kitchen / Dining Area:
Fully fitted kitchen with integrated dishwasher, free standing electric oven with 5-ring gas hob and Lino flooring. Guest toilet off kitchen area with w.c & w.h.b.

1st Floor
Main Bedroom: Front aspect. Features, carpeted flooring, large window overlooking garden.

Bedroom 2: Bright and spacious with carpeted flooring.

Bedroom 3: Front aspect with timber flooring.

Family Bathroom:
Generously sized bathroom comprising a wash hand basin and storage cupboard. A separate WC, timber floor and is plumbed for a washing machine.

Outside:
Set within generous grounds accessed via gravel driveway, the property is surrounded by a spacious garden laid mainly to lawn, offering plenty of room for outdoor living and landscaping. Detached garage to the rear of the property.

Features:
O.F.C.H
Elevated site with stunning, uninterrupted countryside views
Retains original features including staircase and timber flooring
Schools in Lisgoold & Leamlara easily accesible
Bus route to secondary schools
Landscaped gardens with mature trees.
Large block-built shed
PVC Double glazed windows
New roof with natural slates in 2018
Ample parking via gravel driveway
Dual aspect reception rooms providing excellent natural light
Within easy reach of Midleton Town, providing a wide range of amenities including supermarkets, restaurants, cafs, and the renowned Midleton Farmers Market
Full Planning Permission granted for side extension 2025
Viewing:
Please contact Hegarty Properties to arrange a private viewing.

Daft Link

  • City Co. Cork
  • State/county Co. Cork
  • Area Midleton
  • Country Ireland

Details

Updated on May 18, 2026 at 11:08 am
  • Property ID: 6541822
  • Price: €375,000
  • Property Size: 127 m²
  • Bedrooms: 3
  • Bathrooms: 2
  • Property Type: Residential
  • Property Status: Sale agreed

Contact Information

View Listings
Adrianna Hegarty

Enquire About This Property

Similar Listings

Compare listings

Compare
Adrianna Hegarty
  • Adrianna Hegarty